碧桂園家裝住宅裝修設計 十里江灣
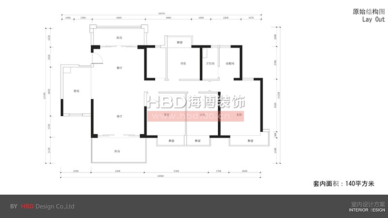
面積 :140平方米 / 地址 :東莞市碧桂園十里江灣 / 點擊 :1021
本案家裝住宅裝修設計項目位于東莞市碧桂園十里江灣,按客戶需求我們將其定位為大氣舒適的現代簡約裝修風格,在整體的色調搭配中,色彩的運用是室內設計中的畫龍點睛之筆,在視覺效果上,主要輪廓以黑色大理石為主,而地面的米色石材與淺色家具則為輪廓內部的點綴裝飾,柔黃的燈光與冷硬的石材搭配,大量的使用了鏡面與不銹鋼硬性的材質,現代氣息見縫插針的滲入,釋放了濃郁的華麗感受,整個空間節奏輕盈卻不失去優雅。接下來跟著廣州裝修設計公司海博裝飾一探究竟。

碧桂園十里江灣家裝住宅裝修設計

碧桂園十里江灣家裝住宅裝修設計

碧桂園十里江灣家裝住宅裝修設計

碧桂園十里江灣家裝住宅裝修設計

碧桂園十里江灣家裝住宅裝修設計

碧桂園十里江灣家裝住宅裝修設計

碧桂園十里江灣家裝住宅裝修設計

碧桂園十里江灣家裝住宅裝修設計

碧桂園十里江灣家裝住宅裝修設計

碧桂園十里江灣家裝住宅裝修設計

碧桂園十里江灣家裝住宅裝修設計

碧桂園十里江灣家裝住宅裝修設計

碧桂園十里江灣家裝住宅裝修設計

碧桂園十里江灣家裝住宅裝修設計
- 上一案例:現代簡約風格家裝住宅裝修設計 亞運城天薈
- 下一案例:新中式風格家裝住宅裝修設計 海印花園家裝項目
137-1150-4887
在線咨詢
